Dornica sa gaseasca acel echilibru intre personalitate si interiorul pe care l-a conturat, dna M., gazda noastra de astazi, o doamna talentata si pasionata de frumos, ne-a introdus intr-o lume a elegantei si a esteticii clasice prezentandu-ne povestea vilei superbe pe care avem onoarea de a o propune spre vanzare.
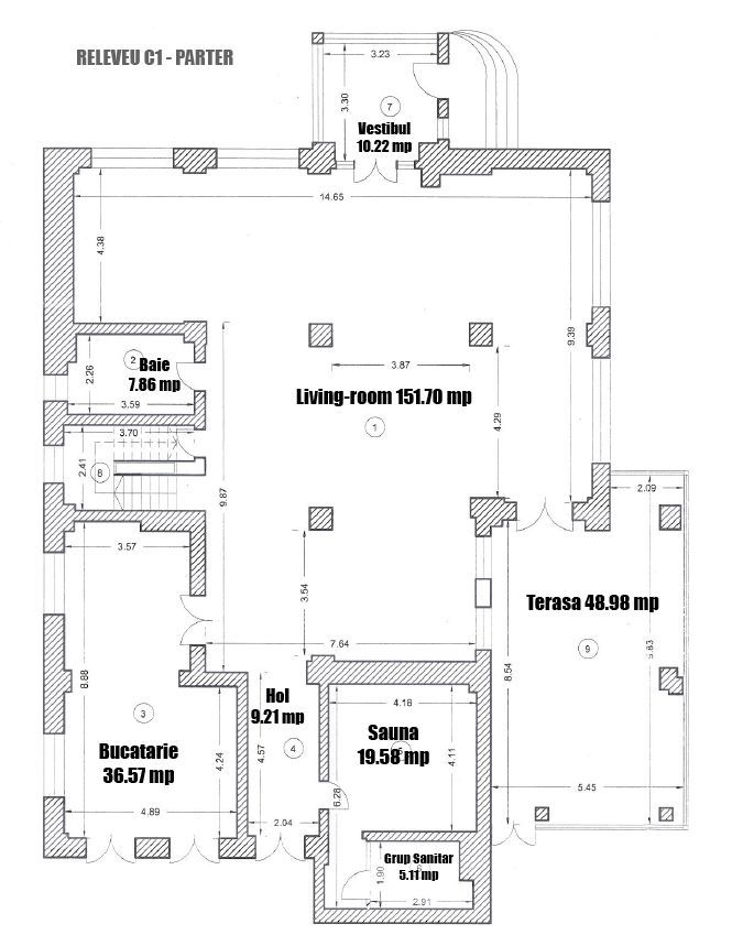
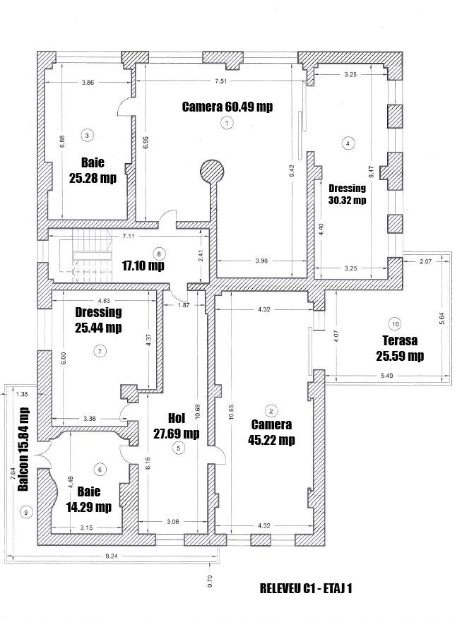
Nu ne aflam in Franta ci in Bucuresti, in nordul capitalei la doar cativa pasi de Parcul Herastrau. Proiectul vilei a fost o provocare nu atat prin complexitatea lui cat mai ales prin recrearea decorurilor inspirate de stilul neoclasic, aceasta datorandu-se faptului ca proprietarii, pasionati de aceasta perioada, si-au dorit un camin elegant, rafinat precum al saloanelor clasice insa cu o atmosfera calda si primitoare, acestia reusind sa-si transpuna cu multa creativitate ideile intr-un concept original, creativ, ce reflecta un echilibru desavarsit asupra interiorului. Desi usor excentrica prin detaliile decorative, resedinta reuseste sa imbine latura estetica a decorului cu functionalitatea spatiilor necesare unui habitat contemporan. Melanjul elementelor neoclasice cu cele napoleoniene pun in valoare piesele de mobilier masiv insa ceea ce este cu adevarat remarcabil la aceasta proprietate este raportarea sa la exterior, felul in care infloreste practic in fiecare anotimp in mijlocul naturii, dincolo de ritmul si aitatia capitalei, un spatiu de peste 1600 mp cu o curte libera de 700 mp si o deschidere de 20 metri liniari, o proprietate a carei gradina emana un calm absolut de o puritate desavarsita, un edificiu asupra caruia lumina poposeste si se odihneste pe liniile clare, ferme, ale exteriorului simplu. Odata ajunsi in interior suntem fermecati de armonia desavarsita a elementelor decorative din alama, lemn, piatra sau marmura. Gratie suprafetelor vitrate generoase, intreaga resedinta se bucura de o lumina naturala ce pune in valoare trasaturile decorurilor speciale, patina mobilierului sculptat, tapiteriile catifelate si stralucirea candelabrelor, toate acestea reusind sa redea acel ambient rafinat, cu un aer clasic. Cele 7 camere ale proprietatii (din care 4 dormitoare) dezvaluie combinatii fine de culori neutre ce pun in evidenta o intreaga gama de obiecte de arta, colectionate pe parcursul calatoriilor proprietarilor, tonurile cromatice delicate conferind caldura iarna si prospetime vara. Lemnul masiv este omniprezent, usile grele – adevarate opere de arta, feroneria, toate emana o liniste si o armonie desavarsita. Compusa din demisol, parter, etajul 1 si etajul 2, proprietatea beneficiaza de cele mai bune finisaje si amenajari existente (parchet masiv, piatra naturala, vitroceramica Bisazza, tapet, usi din lemn triplu stratificat si cristal, climatizare chiller/ventiloconvectoare, centrala termica si generator, sistem de supraveghere video interior si exterior, piscina, etc) oferind viitorului proprietar toate facilitatile si comfortul necesar. Strabatuta cu ochii mintii, fiecare incapere aduce un val de emotii si admiratie, ascunzand in arhitectura si dispunerea spatiilor un mister aparte, un parfum suav de flori mangaiate de lumina. O vila de o rara frumusete si caldura!





















