Vă prezentăm spre vânzare un apartament elegant cu 4 camere, situat în exclusivista zonă Kiseleff, la etajul 4 al unui imobil rezidențial de lux cu regim de înălțime redus, finalizat în anul 2010.
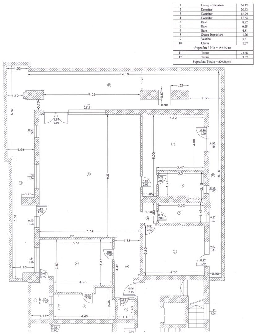
Proprietatea beneficiază de o suprafață utilă generoasă de 153 mp și este compartimentată eficient pentru a răspunde unui stil de viață confortabil și rafinat: living amplu cu zonă de dining, bucătărie, 3 dormitoare și 3 băi.
Unul dintre punctele forte ale apartamentului este terasa spațioasă de 77 mp, un veritabil spațiu de relaxare, ideal pentru momente petrecute în familie sau pentru seri liniștite, departe de ritmul alert al orașului.
Finisajele sunt de foarte bună calitate și completează armonios ambientul contemporan al proprietății: parchet, gresie și faianță premium, aer condiționat, ferestre cu geam termopan, corpuri de iluminat și obiecte sanitare atent alese.
Pentru un plus de confort, apartamentul beneficiază de două locuri de parcare situate în subteran.
Amplasarea în zona Kiseleff reprezintă un avantaj major, oferind acces rapid către numeroase puncte de interes: mijloace de transport în comun, magazine, cafenele, restaurante, școli și grădinițe, sedii de business, bănci, farmacii și piețe.
Certificat energetic: Clasa A.

















